Logo Retina Logo
  • PROJETS
    • DAUNAY
    • ARTAGON
    • LA CANTINE
    • LES ATEYIERS
    • SALON DES POSSIBILI-THE
    • ETATS GENERAUX
    • NOMADE
Inner Outer View
Inner View

RDV rue de Provence

Rénovation

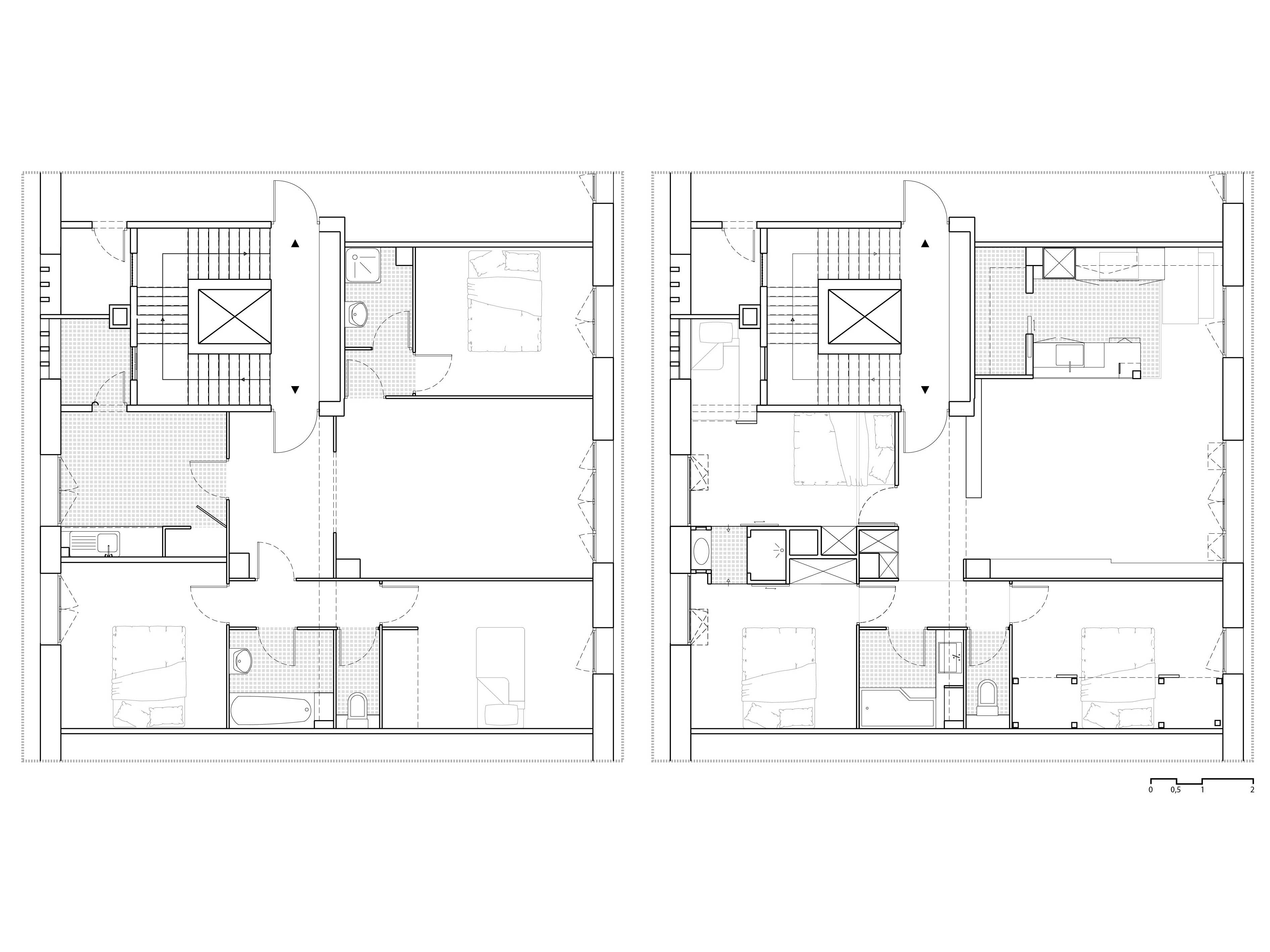
Dans cet appartement marseillais de 80 m² des années 60, les espaces se réinventent : une grande pièce de vie pour l’habitante, et la capacité d’accueillir une famille élargie quand la maison se remplit. Réagencement et mobilier sur mesure dessinent des volumes ouverts, riches en rangements, capables d’héberger jusqu’à dix personnes aux heures de pointe

Programme

Réorganisation de la distribution de l’appartement / Changement des menuiseries extérieurs / création de mobilier sur mesure

Partenaire sur le projet

Atelier Moor - menuisier

Info
MOU C.GENOVA
Montant travaux 100 000€
Date 2023
Lieu Marseille 4
Mission Mission complète